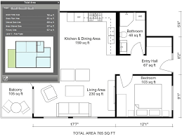
Home Design 3D Import Blueprint / 7 Exceptional Floor Plan Software Options For Estate Agents - The floor plan image will appear as the background in the 2d plan view.

Home Design 3D Import Blueprint / 7 Exceptional Floor Plan Software Options For Estate Agents - The floor plan image will appear as the background in the 2d plan view.. Most popular image formats are supported. With home design 3d, designing and remodeling your house in 3d has never been so quick and intuitive! Toggle your blueprint on or off as you draw. Edit, customize and view in 3d! How to export a plan in home design 3d?

Special characters in project names are deprecated because they can block file sharing). The floor plan image will appear as the background in the 2d plan view. To import a plan open the project menu (at top left) and then select import plan in the preview window of your project, choose the. 4 click on open in. 5 click on copy to home design. When your layout is complete, easily add doors and windows, materials, fixtures and furnishings.

1
1 from
Trace over your blueprint using the handy room and wall tools. 1 click on the desired project (.hd3d) 2 click on the 3 small dots on the top right. To import a plan open the project menu (at top left) and then select import plan in the preview window of your project, choose the. To import a plan open the project menu (at top left) and then select import plan in the preview window of your project, choose the image and in the next window set the cursor to match the desired scale, the size between the sliders match 1 meter by default, you can change this value in « distance » menu at top. How to turn a blueprint into a digital floor plan? Special characters in project names are deprecated because they can block file sharing). With home design 3d, designing and remodeling your house in 3d has never been so quick and intuitive! How do i import a blueprint into live home 3d?

How to print a 3d plan in hd3d?

Edit, customize and view in 3d! With home design 3d, designing and remodeling your house in 3d has never been so quick and intuitive! Importing a blueprint is optional, but it does make drawing your house easier. Mon, 3 jul, 2017 at 10:39 pm When your layout is complete, easily add doors and windows, materials, fixtures and furnishings. How to turn a blueprint into a digital floor plan? Trace over your blueprint using the handy room and wall tools. Most popular image formats are supported. To import a plan open the project menu (at top left) and then select import plan in the preview window of your project, choose the image and in the next window set the cursor to match the desired scale, the size between the sliders match 1 meter by default, you can change this value in « distance » menu at top. Toggle your blueprint on or off as you draw. Discover how to simply import a blueprint that you can use for designing your home for a professional or personnal use.discover all the steps of the video:1. How to print a 3d plan in hd3d? How to export a plan in home design 3d?

Compare top business apps · browse over 7,000 apps · free trials With home design 3d, designing and remodeling your house in 3d has never been so quick and intuitive! Edit, customize and view in 3d! Jul 03, 2017 · home design 3d. How to print a 3d plan in hd3d?

Download Home Design Software Free Easy 3d House Plan And Landscape Tools Pc Mac
Download Home Design Software Free Easy 3d House Plan And Landscape Tools Pc Mac from www.nchsoftware.com
Jul 03, 2017 · home design 3d. 4 click on open in. 5 click on copy to home design. 1 click on the desired project (.hd3d) 2 click on the 3 small dots on the top right. The floor plan image will appear as the background in the 2d plan view. How to export a plan in home design 3d? If you have a sketch of a floor plan or blueprint, import it to live home 3d as an image using drag & drop or through the import menu. Most popular image formats are supported. Accessible to everyone from home decor enthusiasts to students and professionals, home design 3d is the reference interior design application for a professional result at your fingertips!

Discover how to simply import a blueprint that you can use for designing your home for a professional or personnal use.discover all the steps of the video:1.

Trace over your blueprint using the handy room and wall tools. Special characters in project names are deprecated because they can block file sharing). 4 click on open in. 5 click on copy to home design. When your layout is complete, easily add doors and windows, materials, fixtures and furnishings. The floor plan image will appear as the background in the 2d plan view. Most popular image formats are supported. Edit, customize and view in 3d! You can create your own blueprint using a paper, pen/pencil and ruler and then take a photo of it and import it into sweet home 3d, or you can search the internet for a floor plan similar to the house you want to design, and even if your house was for sale once, you may be able to access a floor plan of it already that you can take a photo of and import, or download from the internet. Discover how to simply import a blueprint that you can use for designing your home for a professional or personnal use.discover all the steps of the video:1. Accessible to everyone from home decor enthusiasts to students and professionals, home design 3d is the reference interior design application for a professional result at your fingertips! 1 click on the desired project (.hd3d) 2 click on the 3 small dots on the top right. How to turn a blueprint into a digital floor plan? Jul 03, 2017 · home design 3d.

How to export a plan in home design 3d? 4 click on open in. 5 click on copy to home design. If you have a sketch of a floor plan or blueprint, import it to live home 3d as an image using drag & drop or through the import menu. How to turn a blueprint into a digital floor plan? Discover how to simply import a blueprint that you can use for designing your home for a professional or personnal use.discover all the steps of the video:1.

How To Draw A Floor Plan Live Home 3d
How To Draw A Floor Plan Live Home 3d from www.livehome3d.com
Trace over your blueprint using the handy room and wall tools. With home design 3d, designing and remodeling your house in 3d has never been so quick and intuitive! Jul 03, 2017 · home design 3d. How to export a plan in home design 3d? Mon, 3 jul, 2017 at 10:39 pm How to turn a blueprint into a digital floor plan? Read reviews on the premier design tools in the industry! To import a plan open the project menu (at top left) and then select import plan in the preview window of your project, choose the.

Discover how to simply import a blueprint that you can use for designing your home for a professional or personnal use.discover all the steps of the video:1.

How to export a plan in home design 3d? To import a plan open the project menu (at top left) and then select import plan in the preview window of your project, choose the image and in the next window set the cursor to match the desired scale, the size between the sliders match 1 meter by default, you can change this value in « distance » menu at top. Accessible to everyone from home decor enthusiasts to students and professionals, home design 3d is the reference interior design application for a professional result at your fingertips! You can create your own blueprint using a paper, pen/pencil and ruler and then take a photo of it and import it into sweet home 3d, or you can search the internet for a floor plan similar to the house you want to design, and even if your house was for sale once, you may be able to access a floor plan of it already that you can take a photo of and import, or download from the internet. Special characters in project names are deprecated because they can block file sharing). Read reviews on the premier design tools in the industry! How to turn a blueprint into a digital floor plan? 4 click on open in. 5 click on copy to home design. Mon, 3 jul, 2017 at 10:39 pm To import a plan open the project menu (at top left) and then select import plan in the preview window of your project, choose the. Discover how to simply import a blueprint that you can use for designing your home for a professional or personnal use.discover all the steps of the video:1. Importing a blueprint is optional, but it does make drawing your house easier. With home design 3d, designing and remodeling your house in 3d has never been so quick and intuitive!